Modernas villas adosadas con piscina privada cerca del mar en Santiago de la Ribera
Ubicada en la zona de San Blas en Santiago de la Ribera, Murcia, una de las zonas más atractivas del Mar Menor.
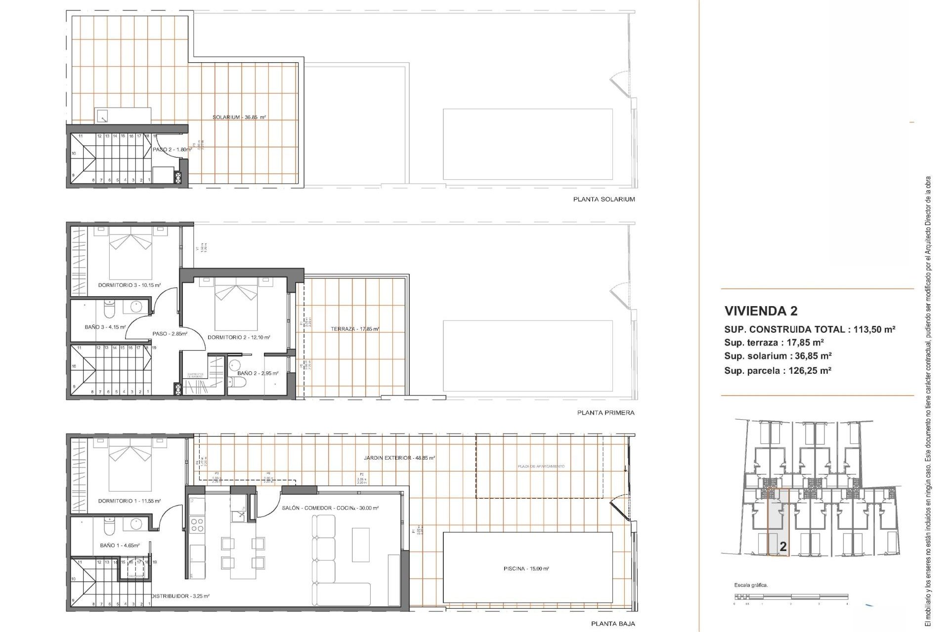
Esta promoción está diseñada con 12 villas de 3 dormitorios y 2/3 baños, incluyendo piscina privada, terraza y solárium con cocina de verano en viviendas seleccionadas.
Las villas cuentan con interiores elegantes y funcionales, cocinas totalmente equipadas con todos los electrodomésticos, y además, incluyen preinstalación de climatización por conductos.
Esta promoción ofrece una oportunidad única para disfrutar de diseño, comodidad y estilo a solo unos minutos del mar.
Exclusiva promoción de obra nueva a solo 1 km de la playa
Descubra esta promoción de edición limitada de villas adosadas situadas en Santiago de la Ribera, una encantadora localidad costera de la costa murciana, conocida por su estilo de vida relajado, sus playas limpias y su excelente clima durante todo el año. Estas nuevas viviendas están situadas a solo 1 km de la costa del Mar Menor, ofreciendo la combinación perfecta de privacidad, comodidad y proximidad a los servicios esenciales y a las opciones de ocio.
Diseño contemporáneo con distribución funcional
Cada villa está distribuida cuidadosamente en dos plantas y algunas unidades disfrutan de un solárium en la azotea, lo que proporciona un amplio espacio para la vida moderna. Las propiedades cuentan con:
3 amplios dormitorios, incluyendo uno en la planta baja
2 o 3 baños completos.
Jardín privado y piscina.
Terraza en la primera planta y algunas unidades con solárium en la azotea, ideal para tomar el sol o recibir invitados.
Aparcamiento privado dentro de la parcela.
Además, dos de las viviendas disponen de instalación de placas fotovoltaicas para el ahorro de energía.
Acabados y prestaciones de alta calidad
Construidas con atención al detalle y según los estándares modernos, las viviendas incluyen:
Puerta de entrada a vivienda acorazada
Persianas de aluminio motorizadas
Cocina amueblada con electrodomésticos
Muebles de baño con espejo y luz
Plato de ducha en porcelánico a medida del baño con mamparas instaladas
Preinstalación de Aire Acondicionado por conductos
Estas viviendas están diseñadas para disfrutar de todo el año, ya sea como residencia principal, segunda vivienda o inversión para alquiler vacacional.
Ubicación privilegiada en la Costa Cálida
Santiago de la Ribera ofrece un estilo de vida mediterráneo y dinámico con todo a mano:
Playa (Mar Menor) – 1 km
Centro comercial La Ribera – 2 km
Roda Golf – 5 km
Aeropuerto de San Javier – 6 km
Puerto deportivo de Lo Pagán – 4 km
Centro comercial Dos Mares – 3 km
Excelente acceso por carretera a Murcia (40 km) y Cartagena (30 km)
Con su rica cultura local, mercados semanales, paseos marítimos y opciones para practicar deportes acuáticos, Santiago de la Ribera es un lugar ideal para disfrutar de lo mejor de la Costa Cálida.
Haga realidad su sueño de vivir en la costa
No pierda esta oportunidad única de adquirir una elegante villa de nueva construcción en una de las zonas más codiciadas de la costa murciana.
Póngase en contacto con nosotros ahora para obtener más información o concertar una visita.