BUNGALOWS DE OBRA NUEVA EN ROLDAN
Complejo residencial de bungalows de obra nueva situado en Roldán, Murcia.
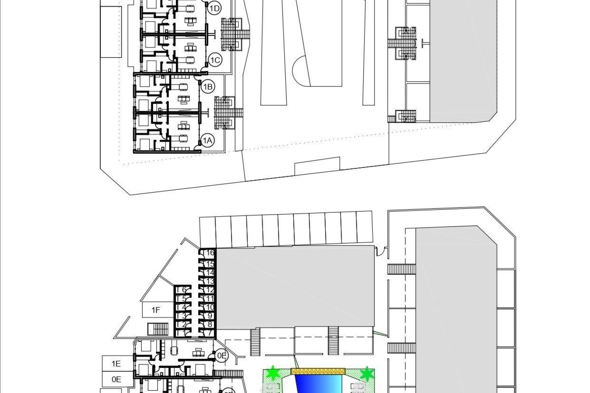
Estos exclusivos bungalows están diseñados con 3 dormitorios y 2 baños, terraza en la planta baja y con 2 dormitorios y 2 baños y solarium para la planta superior.
Los interiores, elegantes y funcionales, cuentan con suelos de alta calidad, cocinas totalmente equipadas en color blanco combinado con imitación madera, incluyendo electrodomésticos. Los baños disponen de mueble con lavabo y luz. Los dormitorios incluyen armarios forrados con cajones y puertas correderas y cada vivienda dispone de preinstalación de aire acondicionado por conductos.
Los exteriores no son menos impresionantes, incluyendo una piscina comunitaria y una hermosa zona deportiva y parque infantil sobre césped artificial para disfrutar.
Cada propiedad dispone de plaza de aparcamiento.
Los trasteros son opcionales con un coste adicional.
Roldán en sí es un pueblo tradicional con todos los servicios locales que necesita, incluyendo supermercados, restaurantes, bares, clínica de salud, farmacia, estación de policía, gasolinera, mecánicos, dentistas, médicos y mucho más.
Los cercanos campos de golf de La Torre y Terrazas son de fácil acceso, el aeropuerto de Corvera está a 15 minutos y las playas del Mar Menor a sólo 20 minutos en coche.