Exclusivo Complejo Residencial de Obra Nueva en Orihuela Costa
Ubicación Privilegiada en el Corazón de la Costa Blanca
Este moderno complejo residencial cerrado se encuentra en Orihuela Costa, una de las zonas más demandadas de la Costa Blanca, a solo 4 km de las playas de Orihuela Costa. Su excelente ubicación permite disfrutar del sol mediterráneo durante todo el año, con acceso a una amplia oferta de ocio, golf y servicios.
A solo 5 minutos en coche, encontrará el campo de golf de Villamartín y el centro comercial La Zenia Boulevard, el mayor de la provincia de Alicante, con más de 150 tiendas, restaurantes y zonas de entretenimiento.
Diseño Moderno y Exclusivas Viviendas
Este residencial ofrece una selección de viviendas de obra nueva diseñadas con los más altos estándares de calidad y confort:
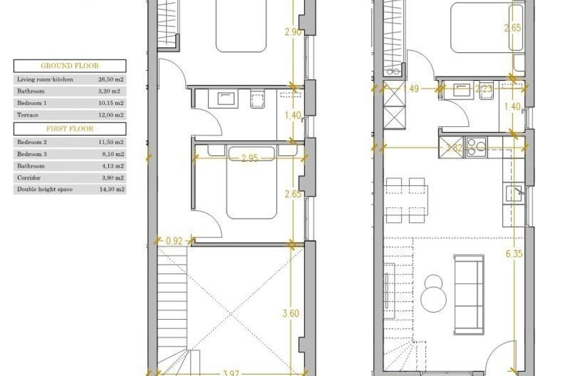
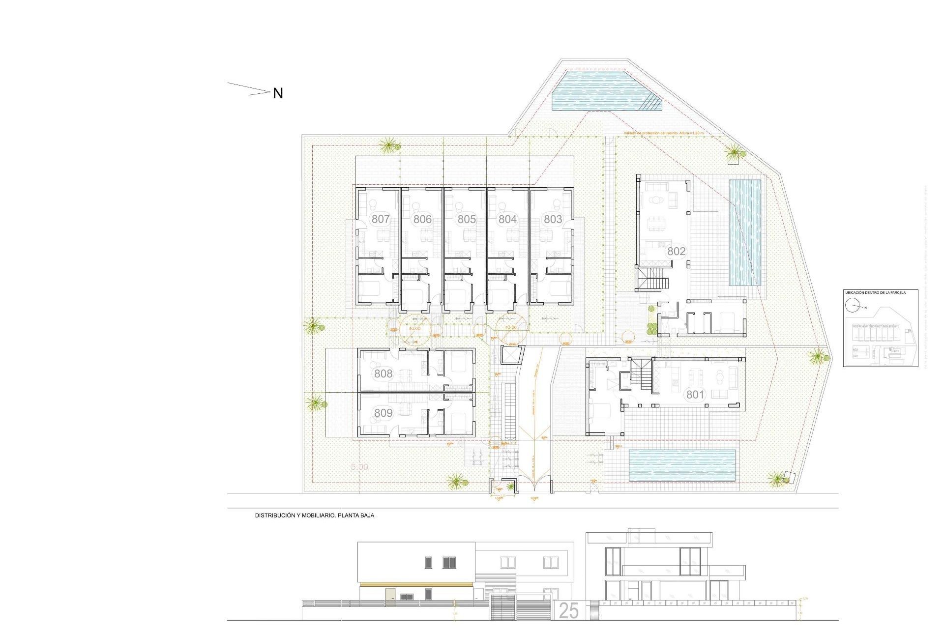
7 adosados de 2 y 3 dormitorios con acceso a una piscina comunitaria.
2 villas independientes de 3 dormitorios y 3 baños, cada una con piscina privada.
Opcional: plazas de aparcamiento subterráneo y trasteros por un costo adicional.
Calidades y Características Exclusivas
Cada vivienda ha sido diseñada con un enfoque moderno y funcional, incluyendo:
Exteriores ajardinados con césped artificial junto a la piscina.
Aerotermia para una mayor eficiencia energética.
Cocina con barra de desayuno en cuarzo, con zona de asientos y fregadero metálico de 50 cm.
Escalera con barandilla de cristal y acero inoxidable.
Baños completamente equipados, con muebles suspendidos, espejo y mampara de ducha.
Preinstalación de aire acondicionado por conductos.
Armarios empotrados en cada dormitorio, con puertas correderas y sistema de cierre suave.
Puerta de entrada de seguridad para mayor tranquilidad.
Proximidad a Puntos de Interés
Playa de Punta Prima – 4 km.
Campo de Golf Villamartín – 5 km.
Centro Comercial La Zenia Boulevard – 5 km.
Centro de Torrevieja – 10 km.
Aeropuerto de Alicante – 40 minutos.
Aeropuerto de Murcia-Corvera – 1 hora.
Viva el Estilo de Vida Mediterráneo
Este exclusivo complejo residencial es ideal para quienes buscan un hogar moderno en la Costa Blanca, con acceso a playas, golf y todos los servicios. No pierda esta oportunidad única y contáctenos hoy mismo para más información o concertar una visita.