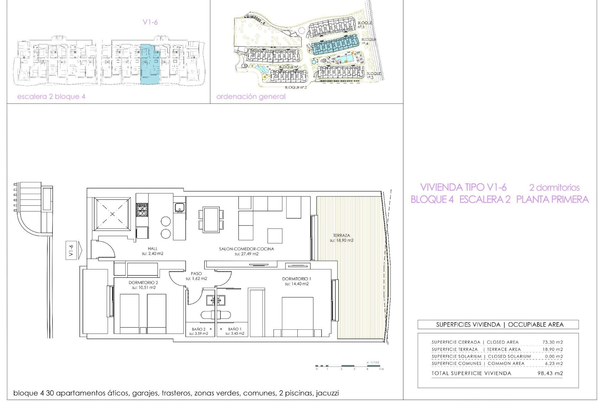
Apartment · Obra Nueva Playa Flamenca · Costa Blanca Sur

Ref. NB-21217
339.000€
Ref. NB-21217
339.000€

Apartment · Obra Nueva Playa Flamenca · Costa Blanca Sur

Resumen

  • Habitaciones2
  • Baños2

Descripción

RESIDENCIAL DE OBRA NUEVA EN PLAYA FLAMENCA !!!

Localización

Agente

Olga Sewastianowicz Ibérica Home Invest
Agente inmobiliario Olga Sewastianowicz

Teléfono: 623 501 422

Email: olga@ibericahomeinvest.com

Hacer una consulta

Responsable del tratamiento: Ibérica Home Invest, Finalidad del tratamiento: Gestión y control de los servicios ofrecidos a través de la página Web de Servicios inmobiliarios, Envío de información a traves de newsletter y otros, Legitimación: Por consentimiento, Destinatarios: No se cederan los datos, salvo para elaborar contabilidad, Derechos de las personas interesadas: Acceder, rectificar y suprimir los datos, solicitar la portabilidad de los mismos, oponerse altratamiento y solicitar la limitación de éste, Procedencia de los datos: El Propio interesado, Información Adicional: Puede consultarse la información adicional y detallada sobre protección de datos Aquí.
Buscar
Mail ¡Hablemos!
WhatsApp ¡Hablemos!