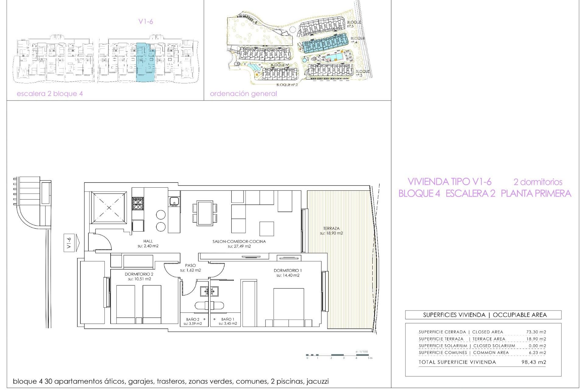
Apartment · New Build Playa Flamenca · Costa Blanca South

Ref. NB-21217
339.000€
Ref. NB-21217
339.000€

Apartment · New Build Playa Flamenca · Costa Blanca South

Overview

  • Bedrooms2
  • Bathrooms2

Description

NEW BUILD RESIDENTIAL AT PLAYA FLAMENCA!!!

Location

Agent

Olga Sewastianowicz Ibérica Home Invest
Real Estate Agent Olga Sewastianowicz

Phone: 623 501 422

Email: olga@ibericahomeinvest.com

Make an enquiry

Data Controller: Ibérica Home Invest, Purpose of Processing: Management and control of the services offered through the Real Estate Services website, Sending information via newsletter and others, Legal Basis: By consent, Recipients: Data will not be shared, except for accounting purposes, Rights of Interested Parties: Access, rectify, and delete data, request its portability, object to processing, and request its limitation, Source of Data: The Data Subject, Additional Information: You can consult additional and detailed information on data protection Here.
Search
Mail Let's talk!
WhatsApp Let's talk!