VILLAS DE OBRA NUEVA EN LA NUCIA
Residencial de nueva construcción de cómodas y lujosas villas con piscina privada en La Nucia.
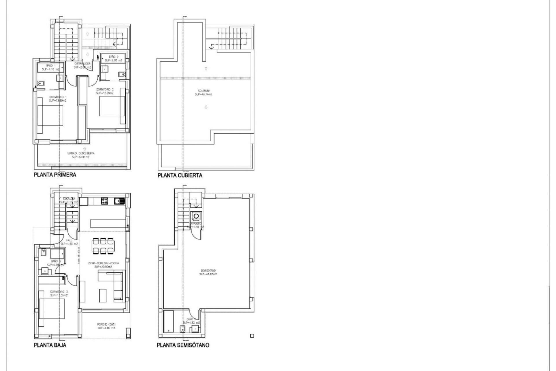
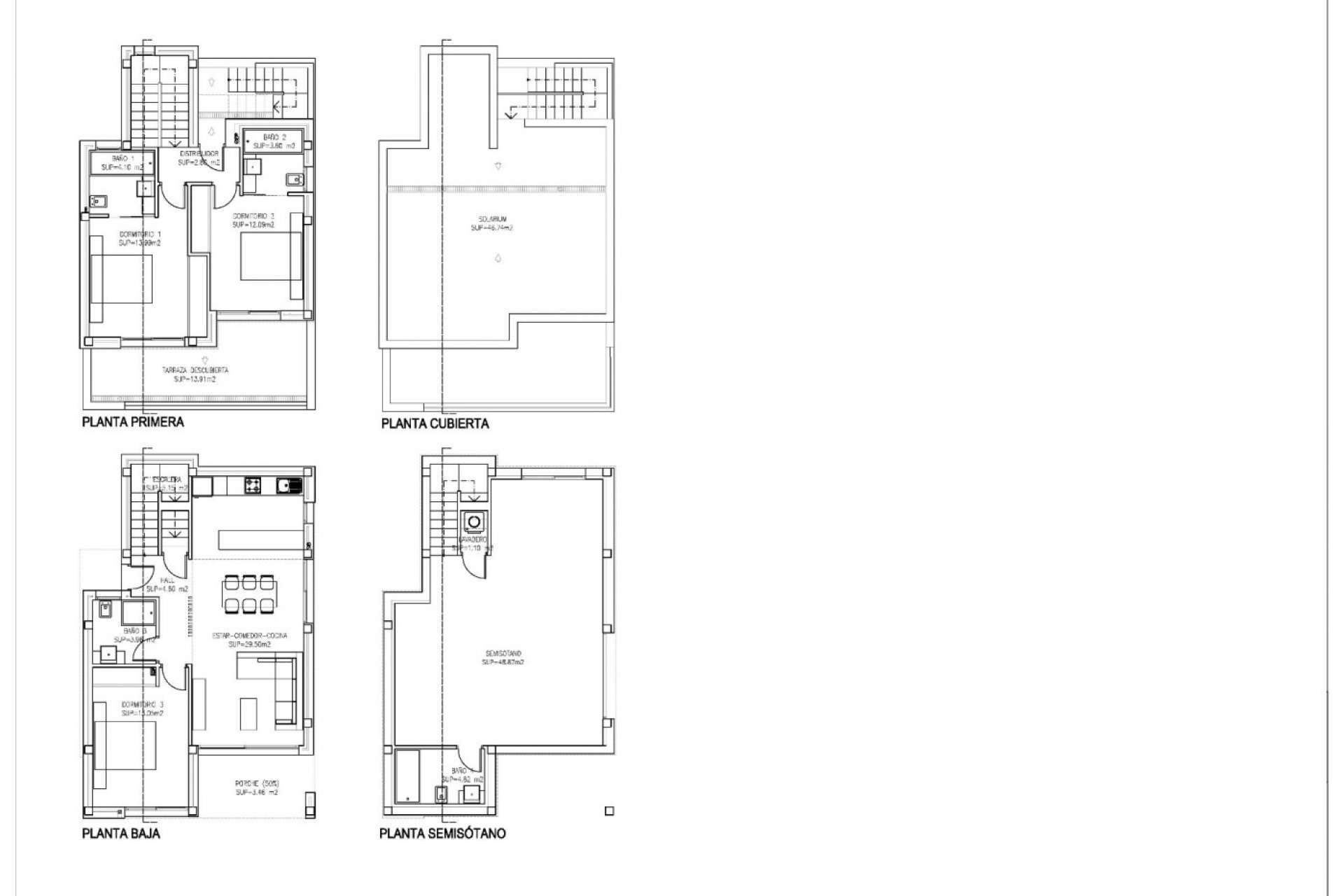
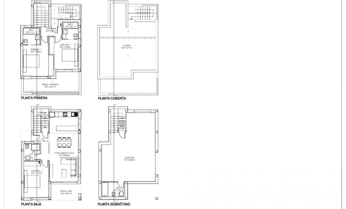
Las villas constan de 3 amplias habitaciones dobles con armarios empotrados y forrados.Una habitación está en la planta baja y las otras dos en la primera planta.
Consta de 4 baños completamente terminados con mamparas de cristal, sanitarios de porcelana y grifería termostática en las duchas, uno en la primera planta, otro en el garaje y los otros 2 en suite en las habitaciones de la primera planta.
Luminoso salón con grandes ventanales que dan acceso a la parcela privada con piscina y césped artificial donde poder disfrutar y relajarse.
Cocina americana totalmente equipada con muebles altos y bajos, electrodomésticos de alta gama y una isla con muebles bajos, encimera de SILESTONE con fregadero incorporado de acero inoxidable y campana extractora de diseño de acero inoxidable.
Instalación de Aire Acondicionado y Calefacción por conductos AEROTHERMAL con 2 máquinas independientes (doble zona).
Confort y diseño PORCELANOSA aportan acabados exclusivos, como suelos flotantes, suelos de piedra natural y gres de primera calidad.Toda la Villa cuenta con iluminación interior y exterior por LED y persianas eléctricas.
Residencial situado en una zona exclusiva de gran calidad y con todas las comodidades; terraza, solarium, garaje privado para 2 vehículos, zonas ajardinadas, urbanización, piscina y todo lo que pueda imaginar.
Residencial comprometido con el medio ambiente, equipado con placas solares para la producción de agua caliente sanitaria, iluminación LED y aislamiento TERMICO-ACUSTICO.
La Nucía es un municipio de la comarca de la Marina Baixa, Alicante. Limita con los municipios de Altea, Callosa d'En Sarrià, Benidorm, Polop y L'Alfàs del Pi.
La Nucía está situada en un valle frutal entre Benidorm y Callosa d'En Sarrià, a 3 km de la costa de Altea. El centro urbano está en un promontorio con vistas al mar Mediterráneo, a 51 km al norte de Alicante y 8 km al norte de Benidorm.
DISTANCIAS:
- Acceso desde la autopista A.
- 5 minutos de Terra Mítica.
- 5 minutos del colegio ELIANS.
- 5 minutos de supermercados, cafeterías y todo tipo de servicios.
- 10 minutos de la Playa de Benidorm.
- 15 minutos de la Playa del Albir.
- 20 minutos del Castillo de Guadalest.
- 40Km del Aeropuerto de Alicante-Elche.