NOWO WYBUDOWANE BUNGALOWY W HONDÓN DE LAS NIEVES
Nowo wybudowane 4 bungalowy położone w Hondón de las Nieves (Alicante).
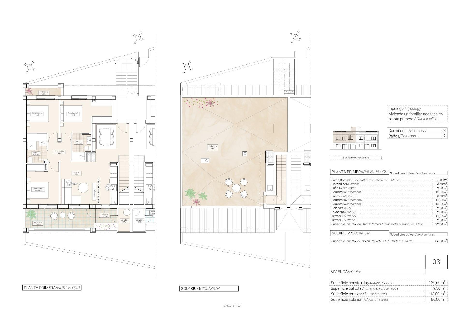
Wszystkie bungalowy mają 3 sypialnie z wbudowanymi szafami, 2 łazienki, duży salon, wyposażoną kuchnię i taras.
Nieruchomości są dostępne na parterze z przednim i tylnym tarasem/ogrodem oraz na najwyższym piętrze z tarasem i prywatnym solarium.
Nieruchomości na pierwszym piętrze mają panele fotowoltaiczne na dachu w celu oszczędzania energii.
Kuchnie są w pełni umeblowane i wykończone blatami z granitu lub syntetycznego aglomeratu (silestone lub podobnego).
Łazienki są wykończone wysokiej jakości urządzeniami sanitarnymi i kranami z wbudowaną spłuczką.
Domy te posiadają wstępną instalację klimatyzacji kanałowej z pompą ciepła, wymuszoną wentylację z odzyskiem ciepła, system aerotermalny do ciepłej wody użytkowej, najnowocześniejszą izolację termiczną i akustyczną, aluminiową stolarkę zewnętrzną z mostkiem termicznym i okiennicami.
Hondón de las Nieves to miasto we Wspólnocie Walenckiej w Hiszpanii.
Znajduje się w południowo-zachodniej części prowincji Alicante, w regionie Vinalopó Medio.
Plaże i lotnisko w Alicante znajdują się w odległości zaledwie 30 minut jazdy samochodem.